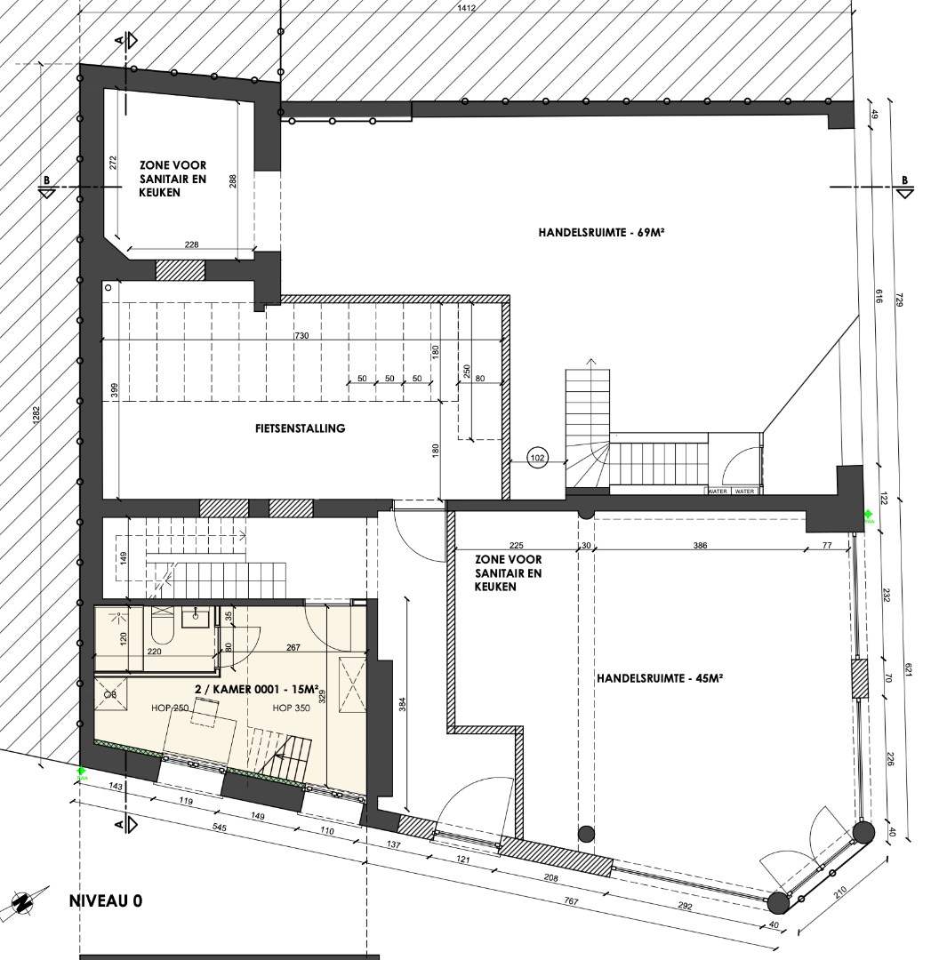
Bent u op zoek naar een handelspand in Leuven? Dan is residentie ROMÉE misschien wel de perfecte locatie voor u. Deze nieuwe residentie biedt diverse handelsruimtes aan die perfect zijn voor verschillende soorten bedrijven. Of u nu een boetiek, koffiebar of ander soort winkel wilt openen, residentie ROMÉE biedt de ruimte en de mogelijkheden die u nodig heeft.
Daarnaast biedt residentie ROMÉE ook andere voordelen, zoals een gunstige ligging in het centrum van Leuven. Hierdoor profiteert u van een goede zichtbaarheid en bereikbaarheid, wat essentieel is voor een succesvolle winkel. Bovendien is de omgeving van residentie ROMÉE levendig en bruisend, waardoor u kunt profiteren van een constante stroom aan potentiële klanten.
Kortom, als u op zoek bent naar ween handelspand in Leuven, dan is residentie ROMÉE zeker het overwegen waard. Met een gunstige ligging en diverse andere voordelen, biedt deze residentie de perfecte omgeving voor uw bedrijf. Neem contact op met de verhuurder voor meer informatie over de beschikbare winkelruimtes en de mogelijkheden voor uw onderneming.
Interesse? Neem vandaag nog contact met ons op voor meer info of een bezichtiging.
| Adres: | Brusselsestraat 51 Leuven |
| Residentie: | ROMY |
| Referentie: | H_2026_ROMY_HANDEL |
| Huurprijs: | € 4.615/maand |
| Type: | Winkelruimte |
| Beschikbaar vanaf: | 1/09/2026 |
| Algemene staat: | Instapklaar |
| Verhuurbare vloeroppervlakte: | 114 m² |
| Bureau: | Ja |
| Showroom: | Ja |
| EPC Certificaat Nr.: | 24062-G-OMV_2025033961/EP15513/SV/A001/D01 |
| Energielabel: | C |
| EPC E-peil: | 48,00 |
| Stedenbouwkundige vergunning: | Ja |
| Overstromingsgevoelig: | Niet meegedeeld |
| Overstromingsgebied: | Niet meegedeeld |
| Erfgoed: | Niet meegedeeld |