U gebruikt een verouderde internetbrowser.
We raden u aan om de meest recente internetbrowser te installeren voor de beste weergave van deze website.
Een internetbrowser die up to date is, staat ook garant voor veilig surfen.

Oude Markt 14 / 0101, 3000 Leuven
Huurprijs: € 770 /maand

Omschrijving

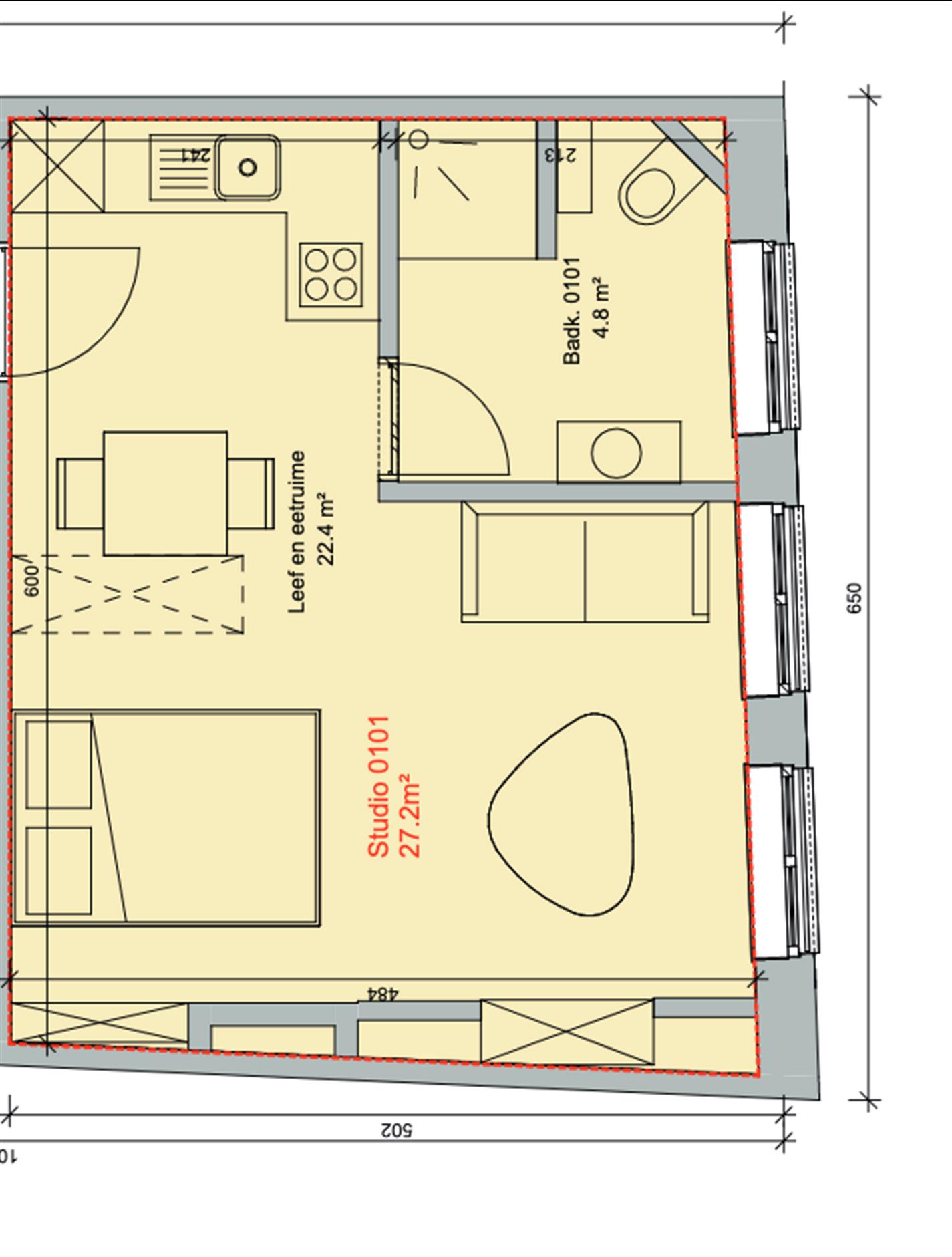
Ruim, bemeubelde studio!

Deze prachtige bemeubelde studio is gelegen in de bruisende studentenstad Leuven, in de residentie LISA. De studio is volledig gerenoveerd in 2023 en biedt een moderne en comfortabele leefruimte voor een student of jonge professional.

De bewoonbare oppervlakte van 27.20 vierkante meter is slim ingedeeld, waardoor elke centimeter optimaal benut wordt. De studio beschikt over een open keuken met alle nodige toestellen, een gezellige zithoek, een comfortabel bed en een aparte badkamer met douche, wastafel en toilet.

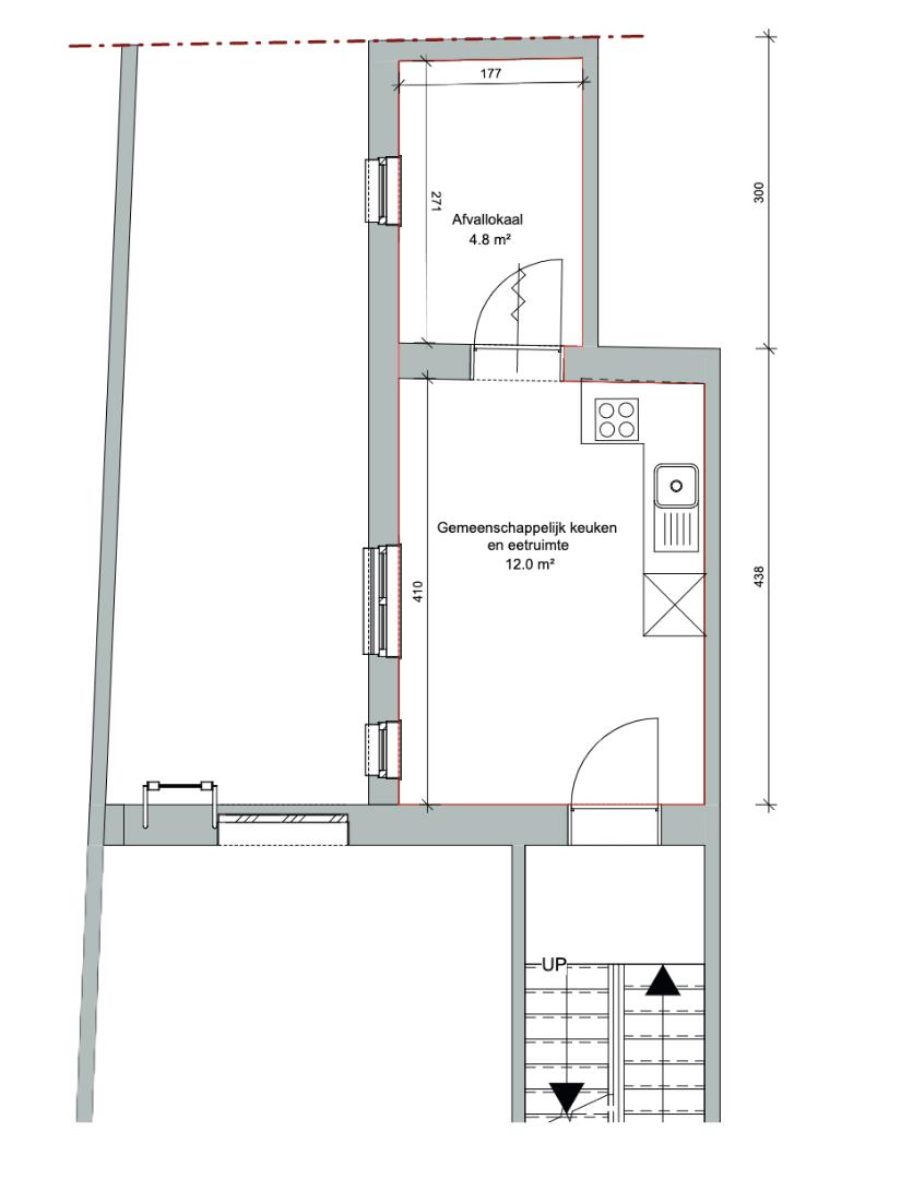
De residentie LISA is gelegen in een levendige buurt, nabij verschillende winkels, restaurants, bars en openbaar vervoersmogelijkheden. Daarnaast bevinden zich ook verschillende onderwijsinstellingen op een steenworp afstand, waardoor deze studio ideaal is voor studenten.

Dankzij de moderne inrichting en de gunstige ligging is deze studio de perfecte uitvalsbasis voor wie wil genieten van het bruisende stadsleven van Leuven. Of je nu op zoek bent naar een comfortabele plek om te studeren of een gezellige thuisbasis om te genieten van alles wat de stad te bieden heeft, deze studio in residentie LISA biedt het allemaal.


Kenmerken

Algemeen

Adres:Oude Markt 14/0101
Leuven
Residentie:LISA
Referentie:H_2026_LISA_0101
Huurprijs:€ 770/maand
Type:Studio
Beschikbaar vanaf:1/09/2026
Bewoonbare opp.:27 m²
Type constructie:Steen
Bouwjaar:2023
Renovatiejaar:2023
Op verdieping:1
Totale kosten:€ 150

Comfort

Gemeubeld:Ja

Informatieplicht

EPC Certificaat Nr.:in aanvraag
Stedenbouwkundige vergunning:Ja
Voorkooprecht:Neen
Verkavelingsvergunning van toepassing:Neen
Stedenbouwkundige bestemming:Woongebied
Dagvaarding en herstelvordering:Geen rechterlijke herstelmaatregel of bestuurlijke maatregel opgelegd
Overstromingsgevoelig:Geen overstromingsgevoelig gebied
Overstromingsgebied:Geen afgebakende zones
Erfgoed:Geïnventariseerd erfgoed

Ligging

360°

Neem vrijblijvend contact op

Wenst u meer informatie of het pand te bezoeken? Contacteer ons vrijblijvend voor meer informatie. 
Wanneer wij uw aanvraag hebben ontvangen zullen wij verder contact met u opnemen. 


U moet akkoord gaan met het privacybeleid van deze website
* Verplicht in te vullen
** Één van deze velden is verplicht in te vullen
Niet gevonden wat u zocht? Schrijf u dan vrijblijvend in op onze nieuwsbrief en blijf op de hoogte van ons recentste aanbod.
Schrijf u in
Terug naar boven
Sluit menu Immo Leuven Syus