U gebruikt een verouderde internetbrowser.
We raden u aan om de meest recente internetbrowser te installeren voor de beste weergave van deze website.
Een internetbrowser die up to date is, staat ook garant voor veilig surfen.

Hanswijkstraat 40 / 0103, 2800 Mechelen
Huurprijs: € 525

Omschrijving

Gezellige nieuwe studentenkamer in Mechelen - MOMENTEEL IN RENOVATIE!!

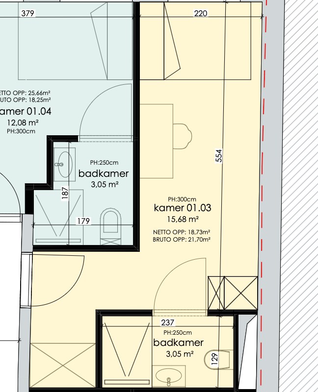
Ben je op zoek naar een studentenkamer met eigen sanitair in hartje Mechelen? Dan is residentie ALIZEE de perfecte plek voor jou! Deze prachtig gerenoveerde residentie biedt bemeubelde kamers met een bewoonbare oppervlakte van 16.00 vierkante meter. De kamers zijn voorzien van alle nodige faciliteiten om comfortabel te kunnen studeren en leven.

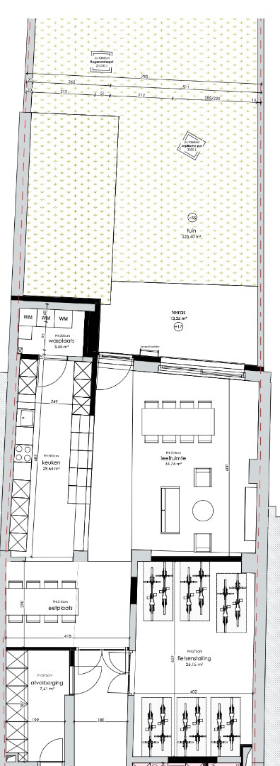
Naast de kamers heeft residentie ALIZEE ook een fietsenstalling, waar je veilig je fiets kunt stallen. Daarnaast is er een gemeenschappelijke keuken waar je samen met je medebewoners kunt koken en eten. Ook is er een tuin waar je op zonnige dagen kunt genieten van het buitenleven.

De Energieprestatiecertificaat (EPC) waarde van de residentie is 123.93, wat aangeeft dat de residentie energiezuinig is. Dit is niet alleen goed voor het milieu, maar ook voor je portemonnee.

De residentieworst momenteel gerenoveerd, wat betekent dat alles in goede staat zal verkeren en voldoen aan de hedendaagse normen.

Kortom, residentie ALIZEE is de ideale plek voor studenten die op zoek zijn naar een comfortabele en goed gelegen studentenkamer in Mechelen. Met alle voorzieningen en een gunstige ligging, hoef je alleen nog maar je koffers te pakken en te verhuizen!

Plan nu uw bezoek via volgende link: https://booking.syushousing.be


Kenmerken

Algemeen

Adres:Hanswijkstraat 40/0103
Mechelen
Residentie:ALIZEE
Referentie:H_2026_ALIZEE_0103
Huurprijs:€ 525
Type:Studentenkamer
Beschikbaar vanaf:Onmiddellijk
Ligging:Stad centrum
Bewoonbare opp.:16 m²
Type constructie:Traditioneel
Renovatiejaar:2025
Bouwlagen:4
Op verdieping:1
Algemene staat:Luxe-afwerking
Totale kosten:€ 150/maand

Indeling

Kamers:1
Slaapkamers:Ja
Badkamers:1
WC:1
Tuin:Ja

Comfort

Comfort:Fietsenlokaal, Gemeenschappelijke keuken
Gemeubeld:Ja
Treinstation:Ja - op 500 m tot 1000 m
Busknooppunt:Ja - op 500 m tot 1000 m
Bushalte:Ja - op minder dan 500 m
Winkel:Ja - op minder dan 500 m
School:Ja - op minder dan 500 m

Informatieplicht

EPC Certificaat Nr.:12025-G-OMV_2024148724/EP15513/SV/A001/D01
EPC Index:123,93 kWh/(m² jaar)
EPC E-peil:49,00
EPC Geldig tot:13/09/2034
Stedenbouwkundige vergunning:Ja
Voorkooprecht:Neen
Verkavelingsvergunning van toepassing:Neen
Stedenbouwkundige bestemming:Woongebied
Dagvaarding en herstelvordering:Geen rechterlijke herstelmaatregel of bestuurlijke maatregel opgelegd
Overstromingsgevoelig:Geen overstromingsgevoelig gebied
Overstromingsgebied:Geen afgebakende zones
Erfgoed:Geen beschermd erfgoed

Ligging

Neem vrijblijvend contact op

Wenst u meer informatie of het pand te bezoeken? Contacteer ons vrijblijvend voor meer informatie. 
Wanneer wij uw aanvraag hebben ontvangen zullen wij verder contact met u opnemen. 


U moet akkoord gaan met het privacybeleid van deze website
* Verplicht in te vullen
** Één van deze velden is verplicht in te vullen
Niet gevonden wat u zocht? Schrijf u dan vrijblijvend in op onze nieuwsbrief en blijf op de hoogte van ons recentste aanbod.
Schrijf u in
Terug naar boven
Sluit menu Immo Leuven Syus